Артикул:
Standart 6D-G (ГАЗ)
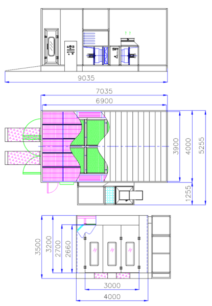
Покрасочная двухмоторная дизельная камера Standart 6D-G (газовый обогрев) (диагональная) - в диагональных камерах вытяжка не через пол, а через боковую стену), тупиковая, без основания, стеновая аспирация c одной боковой стороны. Распашные (трехстворчатые). Режимы работы камеры, окраска, продувка, сушка, остывание.
Преимущества покрасочных камер СТАНДАРТ
Покраска кузова автомобиля – трудозатратное мероприятие, которое невозможно провести вручную с помощью кисти или валика. Весе прогрессивное человечество в этих целях использует специализированные камеры, в которых покраска осуществляется с помощью автоматизированных систем управления.
Покрасочная камера ОСКАС STANDART – универсальное средство для покраски кузова вашего автомобиля. Чтобы купить покрасочные камеры Стандарт вам непременно следует обратиться к нам”.
Покрасочная камераОСКАС STANDART – быстрая и качественная покраска кузова автомобиля.
ОСК "ОСКАС" – гарантия качества реализуемого товара и доступные цены.
Покрасочная камера STANDART предназначена для покраски кузова малолитражных и средних автомобилей в условиях различных типов обогрева.
Для реализации процесса окраски в камере предусмотрен приточный вентилятор. С его помощью производится равномерное распыление частиц лакокрасочного средства на поверхность кузова автомобиля.
Дополнительно камера снабжается системой фильтров тонкой очисти. Это производится в целях препятствия попадания в краску различных загрязнений (пыль, влага и.т.д). После нанесения на кузов красящего вещества, в этой же камере осуществляется сушка автотранспортного средства.
В режиме покраски температура в камере составляет не более 20°С; в режиме сушки – не более 80°С.
Для создания и поддержания таких температур реализованы следующие типы обогрева:
- дизельный;
- газовый;
- электрический;
- водяной.
В свою очередь каждая камера имеет ряд характерных параметров, самыми отличительными из которых являются:
- габаритные размеры;
- интервалы рабочих температур;
- степень очистки.
- количество и мощность электродвигателей.
*Для каждого исполнения камеры данные параметры сугубо индивидуальны.
Существует ряд неоспоримых преимуществ, по которым заказать окрасочную камеру Стандарт вам следует именно у нас:
- штат наших сотрудников составляют высококвалифицированные инженеры с богатым опытом работы в самых различных отраслях производства;
- мы осуществляем доставку (по Москве М.О. и Р.Ф.);
- для постоянных клиентов предусмотрена система скидок и акций;
- мы предоставляем гарантию на продаваемые покрасочные камеры (2 года);
- вся наша продукция сертифицирована на соответствие действующим межгосударственным стандартам (ГОСТ) и техническим нормативным правовым актам (ТНПА);
- реализация покрасочных камер STANDART производится как через сеть дилерских магазинов, так и посредствам интернет-каталога нашего сайта;
В качестве энергоносителя может выступать: дизельное топливо, природный газ, электричество или горячая вода.
Характеристики ОСК OSKAS (теполоноситель ВОДА) серия "STANDART 6"

Характеристики ОСК OSKAS (теполоноситель ГАЗ) серия "STANDART 6"

Характеристики ОСК OSKAS (теполоноситель ДИЗЕЛЬ) серия "STANDART 6"

Характеристики ОСК OSKAS (теполоноситель ЭЛЕКТРИЧЕСТВО) серия "STANDART 6"

Технические характеристики ОСК Standart 6D-G (газовый обогрев)
Преимущества покрасочных камер СТАНДАРТ
Покраска кузова автомобиля – трудозатратное мероприятие, которое невозможно провести вручную с помощью кисти или валика. Весе прогрессивное человечество в этих целях использует специализированные камеры, в которых покраска осуществляется с помощью автоматизированных систем управления.
Покрасочная камера ОСКАС STANDART – универсальное средство для покраски кузова вашего автомобиля. Чтобы купить покрасочные камеры Стандарт вам непременно следует обратиться к нам”.
Покрасочная камераОСКАС STANDART – быстрая и качественная покраска кузова автомобиля.
ОСК "ОСКАС" – гарантия качества реализуемого товара и доступные цены.
Покрасочная камера STANDART предназначена для покраски кузова малолитражных и средних автомобилей в условиях различных типов обогрева.
Для реализации процесса окраски в камере предусмотрен приточный вентилятор. С его помощью производится равномерное распыление частиц лакокрасочного средства на поверхность кузова автомобиля.
Дополнительно камера снабжается системой фильтров тонкой очисти. Это производится в целях препятствия попадания в краску различных загрязнений (пыль, влага и.т.д). После нанесения на кузов красящего вещества, в этой же камере осуществляется сушка автотранспортного средства.
В режиме покраски температура в камере составляет не более 20°С; в режиме сушки – не более 80°С.
Для создания и поддержания таких температур реализованы следующие типы обогрева:
- дизельный;
- газовый;
- электрический;
- водяной.
В свою очередь каждая камера имеет ряд характерных параметров, самыми отличительными из которых являются:
- габаритные размеры;
- интервалы рабочих температур;
- степень очистки.
- количество и мощность электродвигателей.
*Для каждого исполнения камеры данные параметры сугубо индивидуальны.
Существует ряд неоспоримых преимуществ, по которым заказать окрасочную камеру Стандарт вам следует именно у нас:
- штат наших сотрудников составляют высококвалифицированные инженеры с богатым опытом работы в самых различных отраслях производства;
- мы осуществляем доставку (по Москве М.О. и Р.Ф.);
- для постоянных клиентов предусмотрена система скидок и акций;
- мы предоставляем гарантию на продаваемые покрасочные камеры (2 года);
- вся наша продукция сертифицирована на соответствие действующим межгосударственным стандартам (ГОСТ) и техническим нормативным правовым актам (ТНПА);
- реализация покрасочных камер STANDART производится как через сеть дилерских магазинов, так и посредствам интернет-каталога нашего сайта;
В качестве энергоносителя может выступать: дизельное топливо, природный газ, электричество или горячая вода.
Характеристики ОСК OSKAS (теполоноситель ВОДА) серия "STANDART 6"

Характеристики ОСК OSKAS (теполоноситель ГАЗ) серия "STANDART 6"

Характеристики ОСК OSKAS (теполоноситель ДИЗЕЛЬ) серия "STANDART 6"

Характеристики ОСК OSKAS (теполоноситель ЭЛЕКТРИЧЕСТВО) серия "STANDART 6"

Технические характеристики ОСК Standart 6D-G (газовый обогрев)
Документы
ОПРОСНЫЙ ЛИСТ на ОСК ГАРО ОБРАЗЕЦ
100,5 кб
ОПРОСНЫЙ ЛИСТ на ОСК ГАРО
98,5 кб
Отзывы
Оставить отзыв
Загрузка отзывов...
Вы можете воспользоваться одним из следующих вариантов оплаты:
- Оплата наличными. Мы принимаем наличные деньги (только рубли) через кассовый фискальный аппарат.
- Безналичный расчет для юридических и частных лиц.
- Оплата банковской картой. Оплата происходит через ПАО СБЕРБАНК с использованием Банковских карт следующих платежных систем: VISA, VISA Electron, Maestro, MasterCard, МИР
Товар можно получить одним из следующих способов:
- Самовывоз товара с пункта выдачи по адресу в вашем городе.
- Курьерская доставка с 9-00 до 23-00 по рабочим дням. Покупатель обязуется разгрузить оборудование собственными силами и в кратчайшие сроки. Простой автомобиля оплачивается отдельно.
- Доставка одной из следующих транспортных компаний: "ПЭК" (Первая Экспедиционная Компания), "ЖДЭ" (ЖелДорЭкспедиция), "ЭНЕРГИЯ", "ДЕЛОВЫЕ ЛИНИИ", "СДЭК" и другие.

